
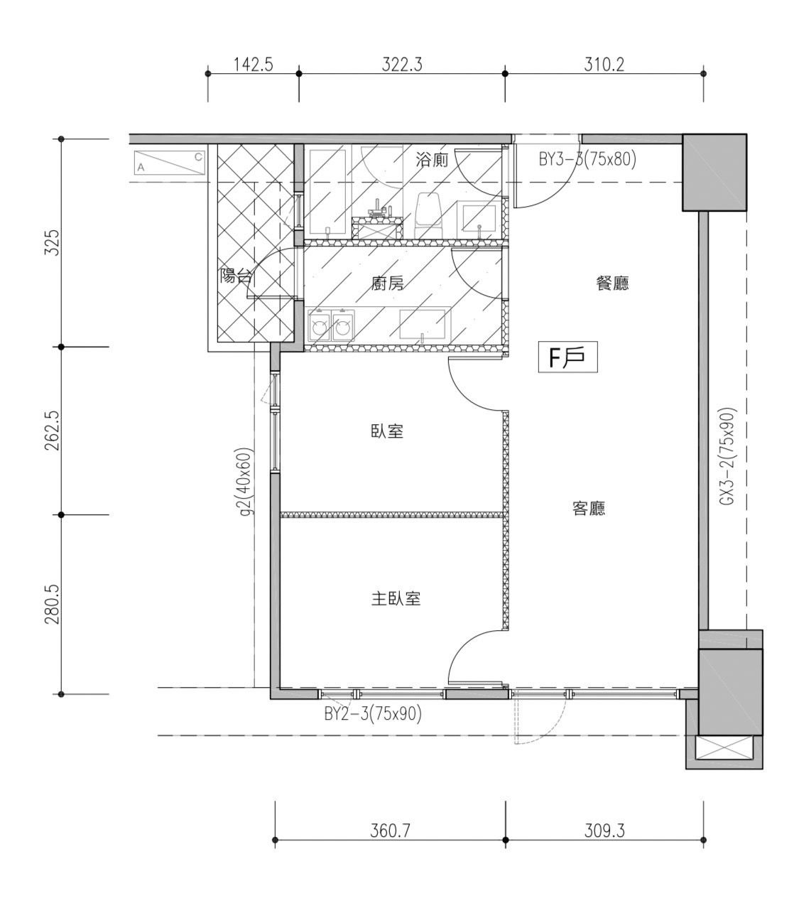
[請益] 兩房一衛,落塵區與衛浴裝潢建議

最近要開始弄裝潢,遇到有點苦惱的問題
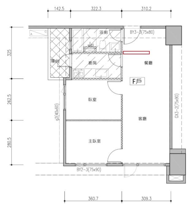
落塵區與衛浴出入口位置重疊
想知道能不能透過裝潢解決這個問題?
另外,原本想考慮在入口處做個屏風
但這樣變成進出衛浴都要繞過屏風,動線很不順
https://i.mopix.cc/223Xp2.jpg

感謝大家
--
※ 發信站: 批踢踢實業坊(ptt.cc), 來自: 110.30.64.109 (臺灣)
※ 文章網址: https://www.ptt.cc/bbs/home-sale/M.1776439681.A.B15.html
→
04/17 23:35,
3小時前
, 1F
04/17 23:35, 1F
→
04/17 23:35,
3小時前
, 2F
04/17 23:35, 2F
對,所以可能不做屏風了,但還是想知道落塵區跟衛浴出入口有沒有什麼方法可以解
※ 編輯: MOUOREO (110.30.64.109 臺灣), 04/17/2026 23:39:38
推
04/17 23:56,
2小時前
, 3F
04/17 23:56, 3F
推
04/18 00:02,
2小時前
, 4F
04/18 00:02, 4F
home-sale 近期熱門文章
49
264
38
42
PTT職涯區 即時熱門文章