[賣/台中/北屯] 十四期新業大塊藏硯即將完工預售
本人同意並願意遵守現行法律、本站使用者條款、本站各級規定、本板所有規範,
本人願意為本文內容負責,並保証本文內容皆詳盡屬實,若違反相關規範,願受處分。
本文僅授權發表於PTT實業坊,未經同意不得轉載至其它網站,否則得視情況提出告訴。
建物門牌: 台中市北屯區昌平東八路
房屋屋齡: 零年/預售屋預計2026年7月交屋
房屋類型: 大樓
所在樓層: 本案在12樓/共14樓
房屋坪數
建物權狀: 67.03坪
主建物 : 30.51坪
附屬建物: 2.89坪
共同使用: 16.83坪
車位 : 16.80坪
建物權狀是否包含車位坪數:Y
土地權狀: 13.80 坪
格局 : 2房(4房改2房, 可改回)2廳 2衛 1陽台
開價 : 3720萬元
停車位 : 坡道平面
交通 : 昌平東8路、昌平東6路
本物件附近地址實價登錄 :
https://i.mopix.cc/XQ0HIL.jpg



本物件兩年內上一筆實價登錄:
https://i.mopix.cc/msYAIV.jpg


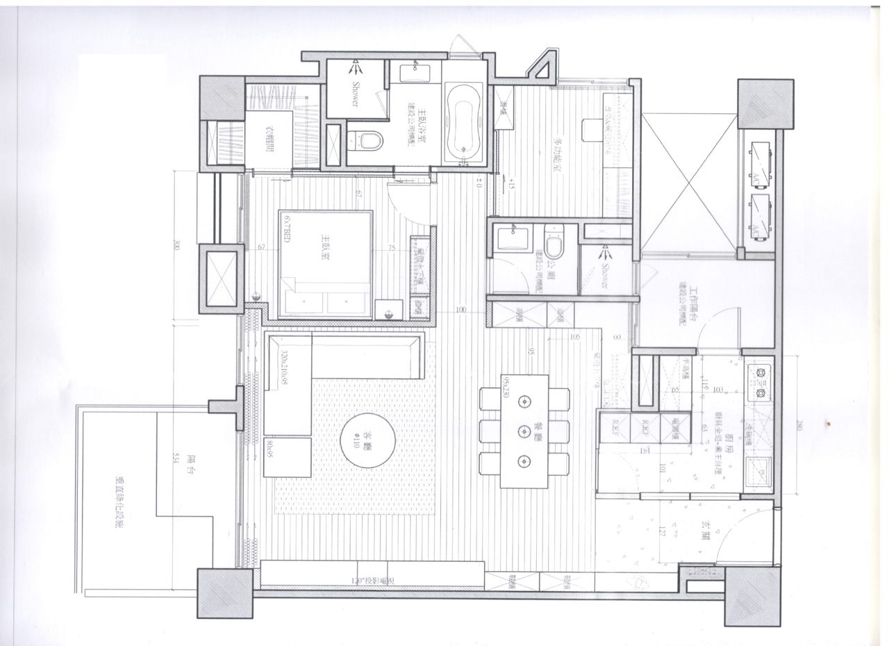
客變後格局圖:
https://i.mopix.cc/43Rn5f.jpg




其他介紹:
‧ 格局配置 2房2廳2衛(原4房格局客變): 使用空間更靈活,書房可作為嬰兒房、工
作室或多功能間使用。可做輕隔間改成3-4房。
‧ 開放式客餐廳|客變後打造通透大空間,光線由大片落地窗灑入,客廳、餐廳與廚房
連成一氣,適合三五好友歡聚,或家人共度悠閒時光。
‧ 半開放式廚房設計|原廚具升級配置,保留足夠收納空間與料理動線,輕鬆享受烹飪
樂趣。
‧ 主臥套房尊榮格局|配有獨立更衣間與寬敞浴缸,空間比例完美,展現飯店級私領域
氛圍。
‧ 雙衛浴設計|皆採乾濕分離,兼顧生活便利與居家美感。
‧ 景觀宜居陽台|面向靜巷綠意,採光通風極佳,午後時光可在此小憩、品茗。
‧ 獨立工作陽台|與主陽台分離,動線乾淨分明,洗曬更為便利。
‧ 附屬車位 B1梯廳旁大車位|配置坡道平面車位,出入動線寬敞、無須迴轉。
‧ 生活機能|鄰近北屯機捷特區、文心崇德生活圈及洲際漢神百貨大巨蛋商圈,周邊匯
集商場、超市、優質學區(新設之松強國小)及綠園道,生活便利與靜謐品質兼具。
聯絡資訊:站內信 (廖小姐)
銷售來源:屋主本人
--
※ 發信站: 批踢踢實業坊(ptt.cc), 來自: 111.253.131.161 (臺灣)
※ 文章網址: https://www.ptt.cc/bbs/home-sale/M.1766392659.A.98A.html
※ 編輯: sunny82107 (111.253.131.161 臺灣), 12/22/2025 16:43:54
※ 編輯: sunny82107 (111.253.131.161 臺灣), 12/22/2025 16:45:19
※ 編輯: sunny82107 (111.253.131.161 臺灣), 12/22/2025 16:48:08
※ 編輯: sunny82107 (111.253.131.161 臺灣), 12/22/2025 16:49:38
推
12/22 16:57,
2月前
, 1F
12/22 16:57, 1F
→
12/22 16:59,
2月前
, 2F
12/22 16:59, 2F
推
12/22 18:46,
2月前
, 3F
12/22 18:46, 3F
推
12/22 19:11,
2月前
, 4F
12/22 19:11, 4F
推
12/22 19:24,
2月前
, 5F
12/22 19:24, 5F
推
12/22 19:24,
2月前
, 6F
12/22 19:24, 6F
推
12/22 19:46,
2月前
, 7F
12/22 19:46, 7F
→
12/22 20:12,
2月前
, 8F
12/22 20:12, 8F
推
12/22 23:43,
2月前
, 9F
12/22 23:43, 9F
推
12/23 00:14,
2月前
, 10F
12/23 00:14, 10F
※ 編輯: sunny82107 (111.253.131.161 臺灣), 12/23/2025 00:53:33
home-sale 近期熱門文章
PTT職涯區 即時熱門文章